このブロックは画面サイズによって見た目が変化する特殊なブロックです
※編集・削除ができる項目も画面サイズによって異なります

詳細はヘルプページの「フローティングメニューブロックの編集」をご確認ください
076-256-0322
【受付時間】9:30~17:30【定休日】水曜日

金沢市高畠2丁目 中古戸建 

【価格】2,100万円(税込)
【種別】中古一戸建て
【土地面積】140.11㎡(42.38坪)公簿
【建物面積】88.60㎡(26.80坪)
【建築年月】1996年8月 新築
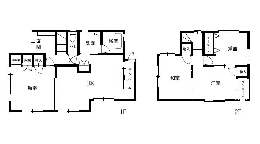
【間取り】4LDK
《1F》LDK12・和8・洗面・浴室
   トイレ・サンルーム・外部収納
《2F》洋6・和6・洋5・サンルーム
【駐車台数】3~4台
ー外装・内装等リフォーム済のきれいな中古住宅ー

金沢西インターに近く、通勤やお出かけにも便利♪
閑静な住宅地、生活利便施設も身近に
揃っております。

4LDKのゆとりある間取りで
駐車3~4台可能で来客時や複数台所有の方にも
安心ですね。

いつでも内見可能です!
お気軽にお問い合わせください♪
小見出し
ここをクリックして表示したいテキストを入力してください。テキストは「右寄せ」「中央寄せ」「左寄せ」といった整列方向、「太字」「斜体」「下線」「取り消し線」、「文字サイズ」「文字色」「文字の背景色」など細かく編集することができます。

物件概要

価格
2,100万円(税込)
物件所在地 〒921-8001 石川県金沢市高畠2丁目128番地3
構造
木造 2階建て
間取り詳細
1階:LDK12・和8・洗面・浴室
   トイレ・サンルーム・外部収納

2階:洋室6・和6・洋5・サンルーム

駐車:3~4台
見出し ここをクリックして表示したいテキストを入力してください。テキストは「右寄せ」「中央寄せ」「左寄せ」といった整列方向、「太字」「斜体」「下線」「取り消し線」、「文字サイズ」「文字色」「文字の背景色」など細かく編集することができます。
・土地面積
140.11㎡(42.38坪)公簿
・延床面積
88.60㎡(26.80坪)
・用地地域
第一種住居地域
・建築年月
1996年8月 新築
・都市計画
市街化区域
・備考
※上下水道負担金66万円別途※
※敷地の一部(30.56㎡)
通路部分となる為、通行地役権の設定をします※  
見出し ここをクリックして表示したいテキストを入力してください。
・学区
米丸小学校/高岡中学校
・間取り
4LDK
・ガス
LP
・引渡し
即時
・交通
北陸鉄道 石川線「高畠町」駅
        徒歩約7分
見出し ここをクリックして表示したいテキストを入力してください。

c o n t a c t

お電話でもお気軽にお問い合わせください
076-256-0322
受付時間 9:30〜18:00(定休日:水曜日)
Mail✉でのお問い合わせ
→ 24時間受け付けております‼
お気軽にお問合せください ヽ☆/
サンライズ不動産株式会社
〒920-0333
石川県金沢市無量寺5丁目81-1
グランメール102
TEL:076-256-0322
営業時間:9:30~17:30